Pénznem: Ft
Ingatlanok > Ingatlanok >
Kínál (eladás) | Kecskemét | 74m2 | 160013 Ref. szám: 2336
Adatlap jellege: Kínál (eladás)
Ingatlan típusa: Lakás (nem panel)
Alapterület: 74 m2
Szobák száma: 1
Emeletek száma: 4
Megye: Bács-Kiskun
Település: Kecskemét
Az ingatlan Irányára: 330.000 Ft Kosárba teszem
Ingatlan leírása

Kecskeméten belvároshoz közeli, 2016 nyár végi átadással, új építésű, 4. emeleti, 74 nm, nappali +1 szobás, 18 nm terasszal rendelkező, egyedi cirkófűtéses, liftes társasházi lakás, beépített konyhabútorral kulcsrakészen eladó. Az épületen belül tárolók, az udvarban parkolók, zárt udvari és alagsori garázsok megvásárlóhatók. A lakás alaprajza a válaszfalak elrendezése, az ajtók elhelyezkedése és mérete változtatható. Tolóajtó kialakítása lehetséges. Burkolatok, csempék, ajtók, egyedileg választhatóak. *konyhabútor *saját gázkazán és gázóra *saját víz- és villanyóra *kiváló hőszigetelésű falak és ablakok. Érdeklődjön értékesítőnknél a műszaki leírás tartalmáról! (IF9208914)

Ingatlan adatai
Megbízás típusa: Kínál (eladás)
Ingatlan szerkezete: Tégla
Szobák: 3
Ingatlan típusa: Lakás (nem panel)
Ingatlan állapota: Új építésű
Épült: 2016
Település: Kecskemét
Terület: Belvároshoz közeli
Fűtés: Cirkó
Hasznos alapterület: 74 m2
Komfortfokozat: Összkomfort
Villany: 230 Volt
Vízellátás: Van, saját vízórával
Csatorna: Közműhálózatba bekötve
Telefon: Van
Tv antenna: Kábeltévé (pl. UPC, Digi stb.)
Gázellátás: Vezetékes gáz
Kilátás: Kertre néző
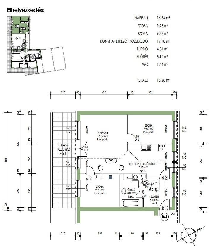
Helyiségek
Helyiség Méret Belm. Fal
Előtér 5.10 m2
Konyha + étkező 17.18 m2
Fürdőszoba 4.81 m2
WC 1.44 m2
Terasz 18.28 m2
Szoba 9.82 m2
Szoba 9.98 m2
Nappali 16.54 m2
Kosár tartalma
0 termék 0 Ft
Lista törlése Pénztár
Ingatlankereső
Ingatlan jellege: Eladó Kiadó
Ingatlan típusa
Notice: Use of undefined constant tipus - assumed 'tipus' in /chroot/home/kecskeme/kecskemetiingatlan.hu/html/admin-inc/atermkez.php on line 818 Notice: Use of undefined constant tipus - assumed 'tipus' in /chroot/home/kecskeme/kecskemetiingatlan.hu/
Notice: Use of undefined constant tipus - assumed 'tipus' in /chroot/home/kecskeme/kecskemetiingatlan.hu/html/admin-inc/atermkez.php on line 818 Eladó
Notice: Use of undefined constant tipus - assumed 'tipus' in /chroot/home/kecskeme/kecskemetiingatlan.hu/html/admin-inc/atermkez.php on line 818 Iparterület
Notice: Use of undefined constant tipus - assumed 'tipus' in /chroot/home/kecskeme/kecskemetiingatlan.hu/html/admin-inc/atermkez.php on line 818 Lakás (nem panel)
Lakás (nem panel)
Megye
Bács-Kiskun
Település:
Válasszon települést
Notice: Use of undefined constant helyseg - assumed 'helyseg' in /chroot/home/kecskeme/kecskemetiingatlan.hu/html/admin-inc/atermkez.php on line 886 Notice: Use of undefined constant helyseg - assumed 'helyseg' in /chroot/home/kecskeme/kecskemetiinga
Notice: Use of undefined constant helyseg - assumed 'helyseg' in /chroot/home/kecskeme/kecskemetiingatlan.hu/html/admin-inc/atermkez.php on line 886 Kecskemét
Kecskemét
Irányár M Ft - M Ft
Alapterület: m2 - m2

Az Ön kapcsolattartója
Bővebb információért kérjük keresse a már ismert Panoráma Ingatlan értékesítőjét vagy vegye fel a kapcsolatot az ingatlan megbízott értékesítővel vagy irodával:

Madarász Mónika
Bővebb információért kérjük keresse a már ismert Panoráma Ingatlan értékesítőjét vagy vegye fel a kapcsolatot az ingatlan megbízott értékesítővel vagy irodával:: +36 20 773-7311
E-Mail: office@panoramaingatlan.hu

PANORÁMA E.S.T. Ingatlanforgalmazó Kft.
Cím: 6000 Kecskemét, Csányi János körút 12.,Pf.: 379.
Telefon: +36 20/999-06-16
Fax: +36 76/506-096
E-Mail: info@panoramaingatlan.hu
Elmentett ingatlanok
Jelenleg nincs elmentett ingatlan Ingatlan elmentése
© Copyright 2011 Panorama Ingatlan. Minden jog fenntartva.
Készítette: Global Web Design Stúdió