Kecskeméten belvároshoz közeli, 2016 nyár végi átadással, új építésű, földszinti 49 nm, nappali +1 szobás, erkélyes, egyedi cirkófűtéses, liftes társasházi lakás, beépített konyhabútorral kulcsrakészen eladó. Az épületen belül tárolók, az udvarban parkolók, zárt udvari és alagsori garázsok megvásárlóhatók. A lakás alaprajza a válaszfalak elrendezése, az ajtók elhelyezkedése és mérete változtatható. Tolóajtó kialakítása lehetséges. Burkolatok, csempék, ajtók, egyedileg választhatóak. *konyhabútor *saját gázkazán és gázóra *saját víz- és villanyóra *kiváló hőszigetelésű falak és ablakok. Érdeklődjön értékesítőnknél a műszaki leírás tartalmáról! (IF9208907)
| Helyiség | Méret | Belm. | Fal |
|---|
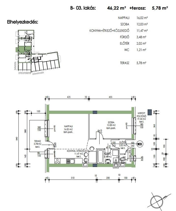
| Nappali | 16.02 m2 | ||
| Szoba | 12.03 m2 | ||
| Konyha + étkező | 11.47 m2 | ||
| Előtér | 2.02 m2 | ||
| Fürdőszoba | 3.48 m2 | ||
| Erkély | 5.78 m2 | ||
| WC | 1.21 m2 |
| 0 termék | 0 Ft |
| Lista törlése | Pénztár |